Marchi Architectes




Elderly Hall – Image 01 of 10

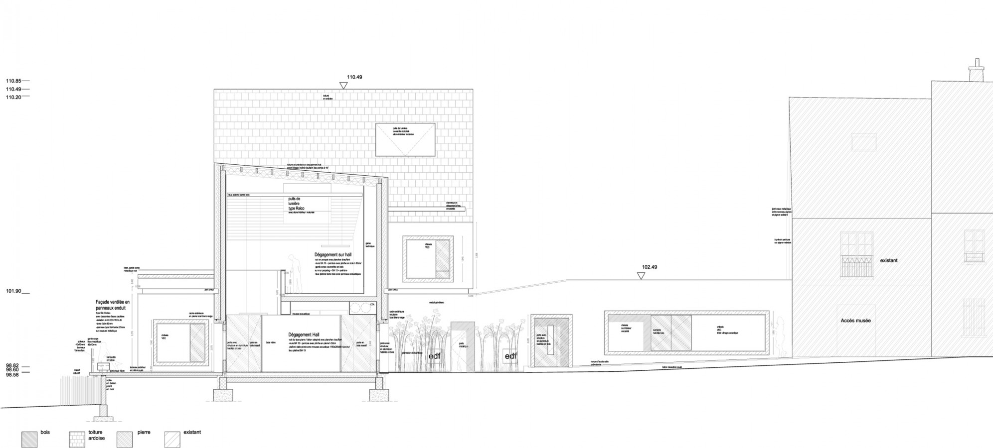
Biévres, France | Elderly hall, polyvalent hall, museum extension | delivery 2015 | City of Bièvres | 2 M € | 730 m² | with Evp, Inex, Forgue |
show description
hide description

In the heart of the old town of Biévres, the elderly hall stands peacefully in the site without trying to hide itself. On ground level the polyvalent hall is composed of two modular spaces, of 50 et 35 m², that can be combined together. The elderly hall widely opens on the garden with various windows so that the eastern light and the view of the valley came inside. Here we can find some open spaces of sociability and others with a more intimate atmosphere. The attitude of the project is to integrate and transform the traditional typologies into a contemporary way. The building complex is composed of pitched roofs.

photos © Fernando Guerra