High school J.Prevert – Image 01 of 10
Longjmeau, France | lycée, concours restreint | 2009 | Ville de Longjumeau | 10 M € HT | 5 000m² | avec Nemo-K, Inex, Mazet
|
show description
hide description


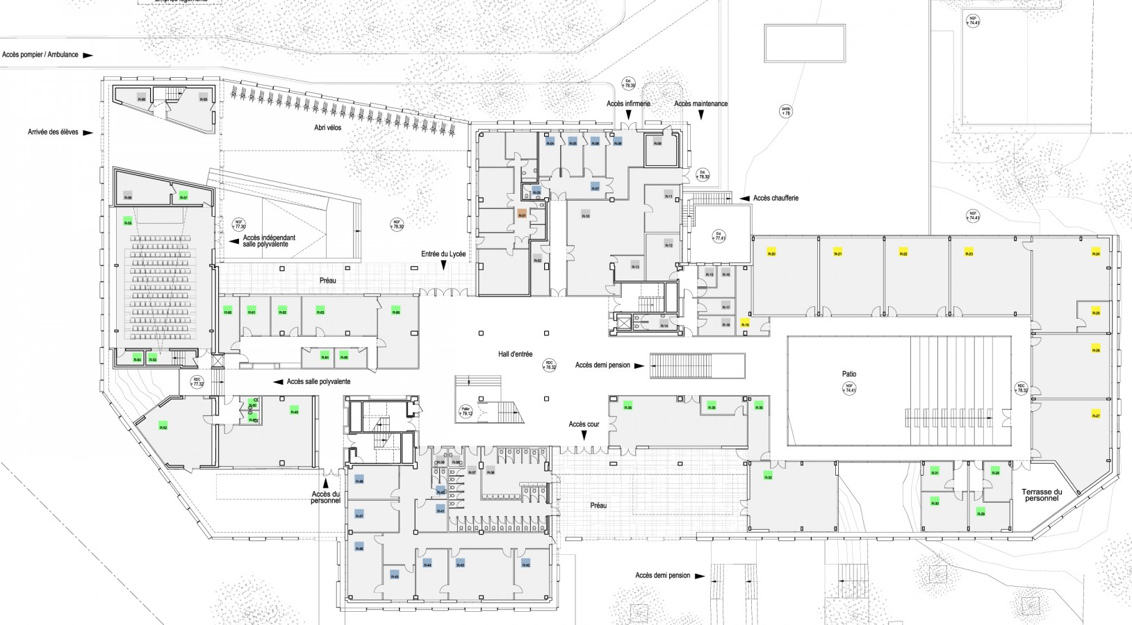
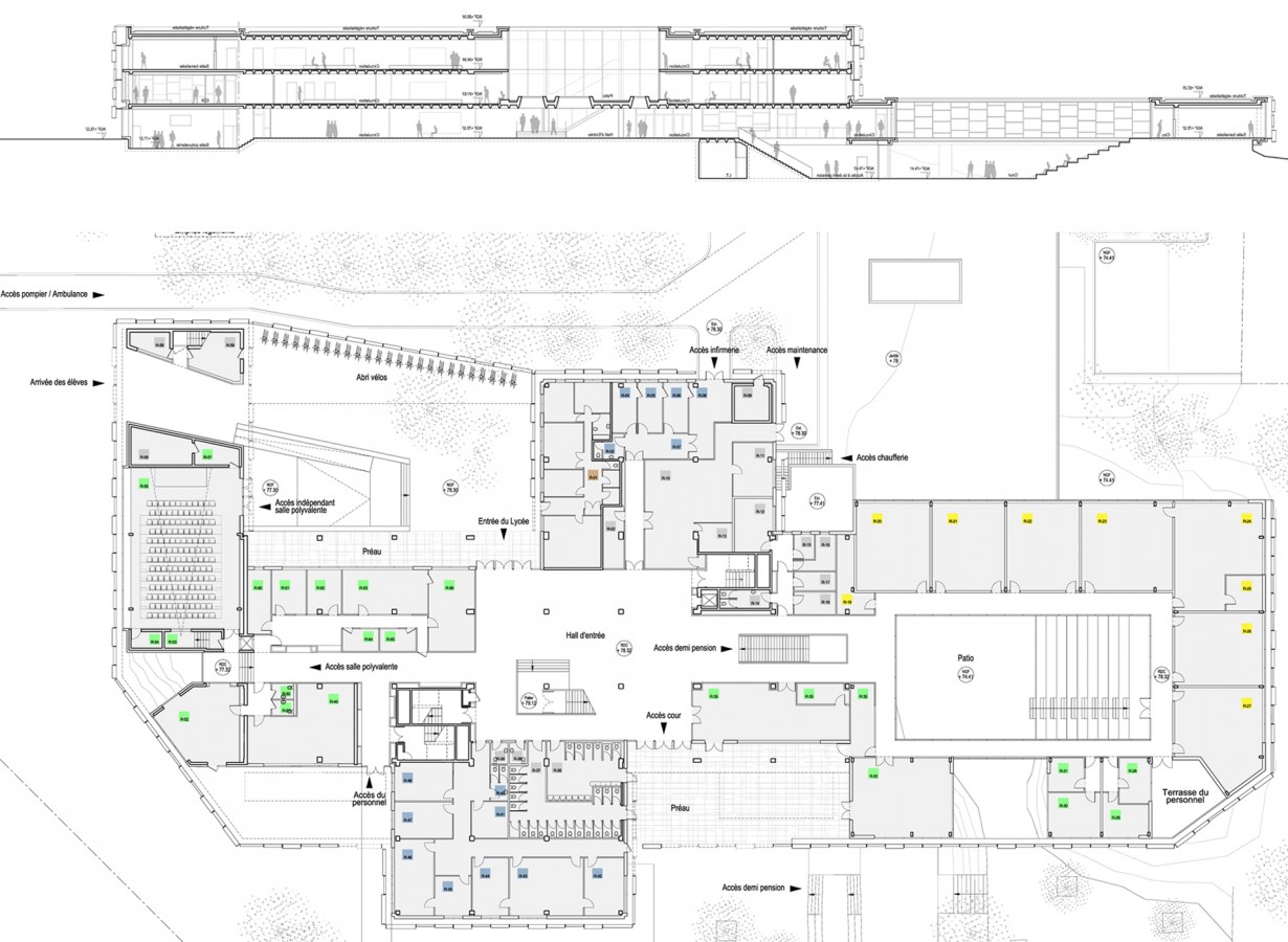
We consider the existing building as a huge tired and too heavy machine in its integration in the site. At the same time, this building presents a certain rigor, about its structure and of its proportions. We appreciate this rigor which allowed us to size the buildings of the extension. The constraint of a phasing in busy site, and especially the will to give to the pupils and to the professors the envy to take possession of their new High school, guided all the conception of the project while preserving almost totality of the existing building with the exception of the striking part of the low ground floor. This extension develops westward and eastward. Westward to signpost the high school since the street J. Ferry, eastward to have north-south directed classes.
images © Federico Kraus