Marchi Architectes




Bechet House – Image 01 of 10

Bretagne, France | house | 2009 | private client | 380 000 € | 299 m² |
show description
hide description

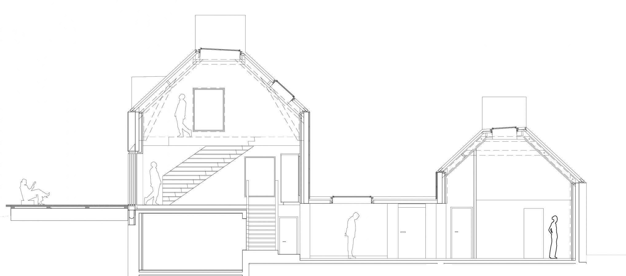
Located on the seaside of a Britain municipality where regulation is very restrictive, the house meets the local obligations with its sloping roof. The local recovered stone (is 30cm walled up) dresses with 30cm thick the reinforced concrete walls of the building. The traditional way of building the stone provides a highly integrated reading of this material in the local landscape.

The roof is zinc quartz treated to be closer to the local slate colour.

The two spaces developed under the sloping roof, illuminated by skylights, are connected by a low volume characterized by zenith light. The continuity and breadth of this area give life to this project.

photos © Fernando Guerra